アンバサダー三軒茶屋 601号室内装済
上層階(6/7階)・三方角部屋・ルーフバルコニー付き住戸
人気の「三軒茶屋」駅徒歩3分
-
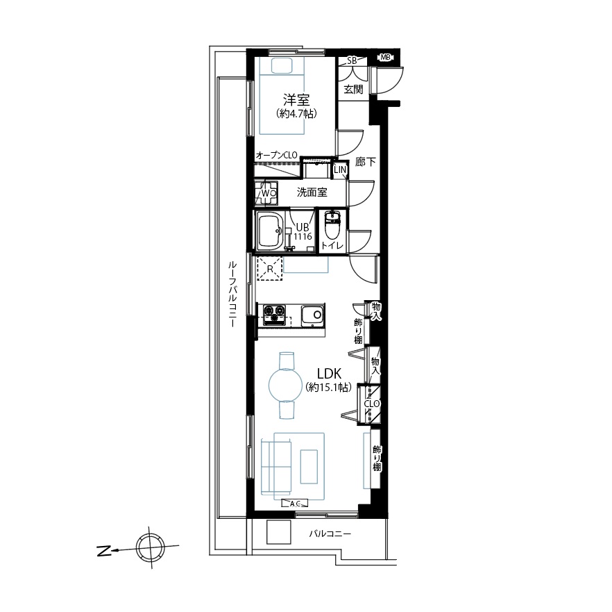
価格 6,499万円(税込) 面積/間取り 46.41㎡ / 1LDK 所在地 東京都世田谷区三軒茶屋1丁目35-22 アクセス 【路線1】東急田園都市線 三軒茶屋駅 徒歩3分
【路線2】東急世田谷線 三軒茶屋駅 徒歩6分- ペット可
-
お問合せ・内見申込
物件詳細
| 管理番号 | 4293 | 建物名・号室 | アンバサダー三軒茶屋 601号室 |
|---|---|---|---|
| 価格 | 6,499万円(税込) | 部屋数・間取り | 1LDK |
| 専有面積 | 46.41㎡ | 土地権利 | 所有権 |
| 築年月 | 昭和54年4月 | 総戸数 | 29戸 |
| 構造・所在階 | RC造 地上7階 6階部分 | 管理形態 | 全部委託 巡回 |
| 管理会社名 | 株式会社穴吹ハウジングサービス | 修繕積立金 | 7,720円/月 |
| 管理費 | 11,600円/月 | 引渡日 | 即時可 |
| 現況 | 空家 | バルコニー面積 | 4.09㎡ |
| 駐車場 | 無 | 駐車場(月額) |
| 補足 | ▪ルーフバルコニー面積:10.89㎡ ▪ペット:飼育可(制限あり ※2 匹まで) |
|---|
【GoogleMap】
お問合せ・内見申込















