木場サニータウン1号棟 1118号室内装済
1号棟・上層階(11/14階)・南東向き住戸につき陽当たり・眺望良好
466世帯大規模マンション
-
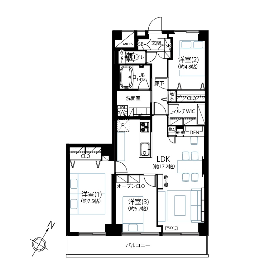
価格 6,999万円(税込) 面積/間取り 82.62㎡ / 3LDK 所在地 東京都江東区枝川3丁目9-10 アクセス 【路線1】京葉線 潮見駅 徒歩7分 - ペット可
-
お問合せ・内見申込
物件詳細
| 管理番号 | 7484 | 建物名・号室 | 木場サニータウン1号棟 1118号室 |
|---|---|---|---|
| 価格 | 6,999万円(税込) | 部屋数・間取り | 3LDK |
| 専有面積 | 82.62㎡ | 土地権利 | 所有権 |
| 築年月 | 昭和58年1月 | 総戸数 | 466戸 |
| 構造・所在階 | RC・SRC造 地上14階 11階部分 | 管理形態 | 全部委託 日勤 |
| 管理会社名 | 日本ハウズイング株式会社 | 修繕積立金 | 5,920円/月 |
| 管理費 | 10,530円/月 | 引渡日 | 即時可 |
| 現況 | 空家 | バルコニー面積 | 10.08㎡ |
| 駐車場 | 空無 | 駐車場(月額) | 18,000~20,000円/ 月(2025年11月現在) |
| 補足 | ペット飼育可(1住戸3匹以内) |
|---|
【GoogleMap】
お問合せ・内見申込







