アビテ目白 704号室投資物件(OC)
山手線「目白」駅徒歩1分・南西/東南角部屋7階部分、陽当り・眺望良好
-
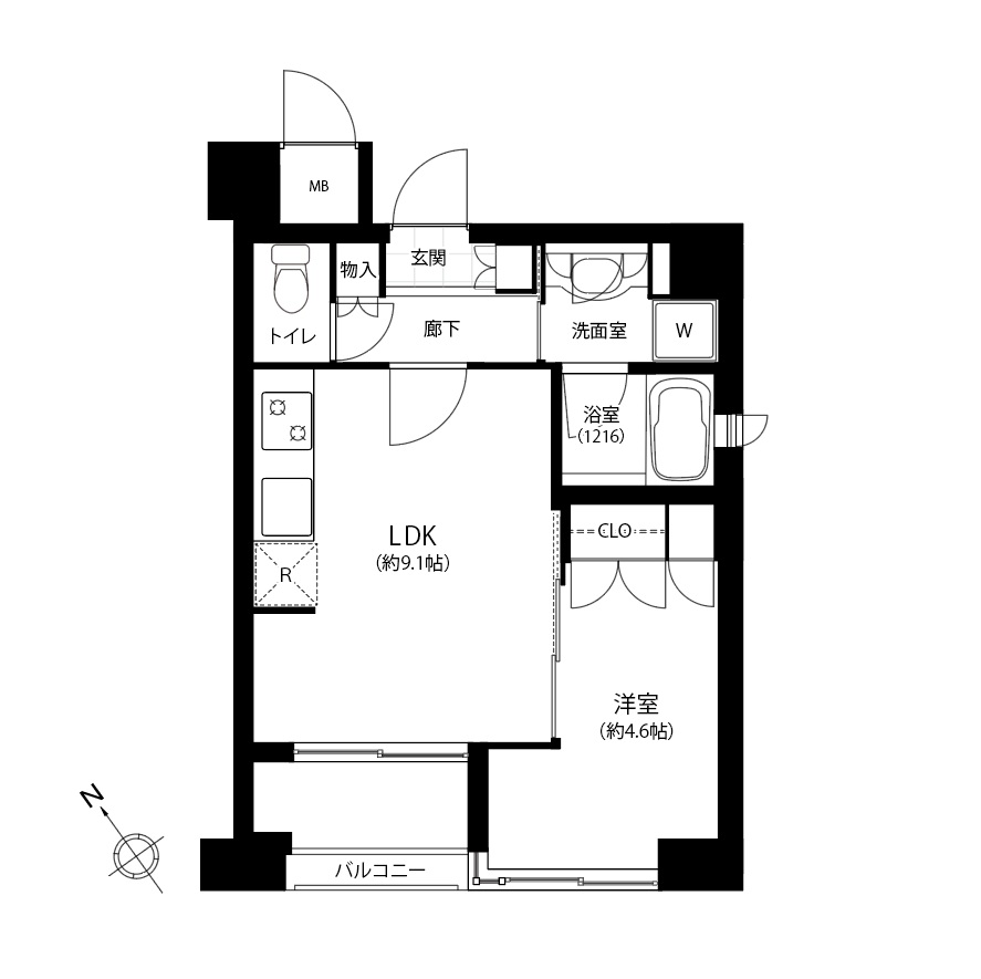
価格 6,420万円(税込) 年間収入/利回り 約180万円 / 2.8% 面積/間取り 33.05㎡ / 1LDK 所在地 東京都豊島区目白3丁目4-2 アクセス 【路線1】山手線 目白駅 徒歩1分
物件詳細
| 管理番号 | 5174 | 建物名・号室 | アビテ目白 704号室 |
|---|---|---|---|
| 価格 | 6,420万円(税込) | 部屋数・間取り | 1LDK |
| 利回り | 2.8% | 年間収入 | 約180万円 |
| 専有面積 | 33.05㎡ | 土地権利 | 所有権 |
| 築年月 | 平成13年7月 | 総戸数 | 29戸 |
| 構造・所在階 | RC造 地上9階 7階部分 | 管理形態 | 全部委託 日勤 |
| 管理会社名 | 伊藤忠アーバンコミュニティ㈱ | 修繕積立金 | 20,330円/月 |
| 管理費 | 12,890円/月 | 引渡日 | 即時可 |
| 現況 | 賃貸中 | バルコニー面積(テラス) | 3.33㎡ |
| 駐車場 | 駐車場(月額) |
※管理会社変更可(変更手数料は賃料の10%(税別))
※登記時の司法書士は売主指定となります。
※賃料収入は将来に渡って確実に得られることを保証するものではありません。
※利回りは年間賃料の総額を購入価格で除して求めた単純利回りであり、
必要経費(固定資産税、管理費・修繕積立金、地代等)は控除されておりません。
【GoogleMap】







