菱和パレス目白台グラーサ 904号室内装済
南東角部屋9階部分につき陽当たり・眺望良好
~敷地内駐車場1台権利(所有権)付き ※外部貸出可~
-
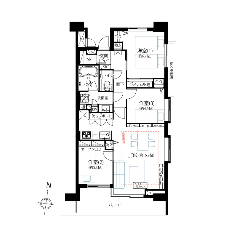
価格 13,800万円(税込) 面積/間取り 73.59㎡ / 3LDK 所在地 東京都豊島区雑司が谷1丁目49-11 アクセス 【路線1】有楽町線 護国寺駅 徒歩6分
【路線2】有楽町線 東池袋駅 徒歩7分
【路線3】副都心線 雑司が谷駅 徒歩11分- ペット可
-
お問合せ・内見申込
物件詳細
| 管理番号 | 3284 | 建物名・号室 | 菱和パレス目白台グラーサ 904号室 |
|---|---|---|---|
| 価格 | 13,800万円(税込) | 部屋数・間取り | 3LDK |
| 専有面積 | 73.59㎡ | 土地権利 | 所有権 |
| 築年月 | 平成13年12月 | 総戸数 | 96戸 |
| 構造・所在階 | SRC造 地上15階 9階部分 | 管理形態 | 全部委託 常駐 |
| 管理会社名 | 株式会社クレアスコミュニティー | 修繕積立金 | 21,490円/月 |
| 管理費 | 14,000円/月 | 引渡日 | 即時可 |
| 現況 | 空家 | バルコニー面積(テラス) | 10㎡ |
| 駐車場 | 空有 | 駐車場(月額) |
| 補足 | ▪駐車場: 1台権利付き(全長4,850×全幅1,850×全高1,550(㎜)、重量1,800㎏以内) ▪駐車場管理費:2,500円/月 ▪ペット飼育可(犬猫は1世帯1匹まで、成長時50cmまでに限る) |
|---|
【GoogleMap】
お問合せ・内見申込









