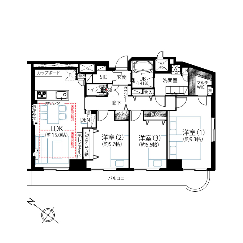
フロール巣鴨 1304号室内装済
南西×東南角部屋・13階部分 陽当たり・眺望良好!
約12.15mのワイドスパンバルコニー(全室バルコニーに面しています)
-
価格 11,000万円(税込) 面積/間取り 87.23㎡ / 3LDK 所在地 東京都豊島区巣鴨5丁目16-5 アクセス 【路線1】都営三田線 西巣鴨駅 徒歩6分
【路線2】山手線 巣鴨駅 徒歩13分
【路線3】都電荒川線 庚申塚駅 徒歩3分 -
お問合せ・内見申込
物件詳細
| 管理番号 | 7784 | 建物名・号室 | フロール巣鴨 1304号室 |
|---|---|---|---|
| 価格 | 11,000万円(税込) | 部屋数・間取り | 3LDK |
| 専有面積 | 87.23㎡ | 土地権利 | 所有権 |
| 築年月 | 平成5年9月 | 総戸数 | 89戸 |
| 構造・所在階 | SRC造 地上14階 地下1階 13階部分 | 管理形態 | 全部委託 日勤 |
| 管理会社名 | ㈱東急コミュニティー | 修繕積立金 | 20,060円/月 |
| 管理費 | 23,600円/月 | 引渡日 | 即時可 |
| 現況 | 空家 | バルコニー面積(テラス) | 15.89㎡ |
| 駐車場 | 無 | 駐車場(月額) |
| 補足 | 特別修繕積立金:2,950円/月 |
|---|
【GoogleMap】
お問合せ・内見申込





※左下.jpg)
.jpg)
.jpg)



